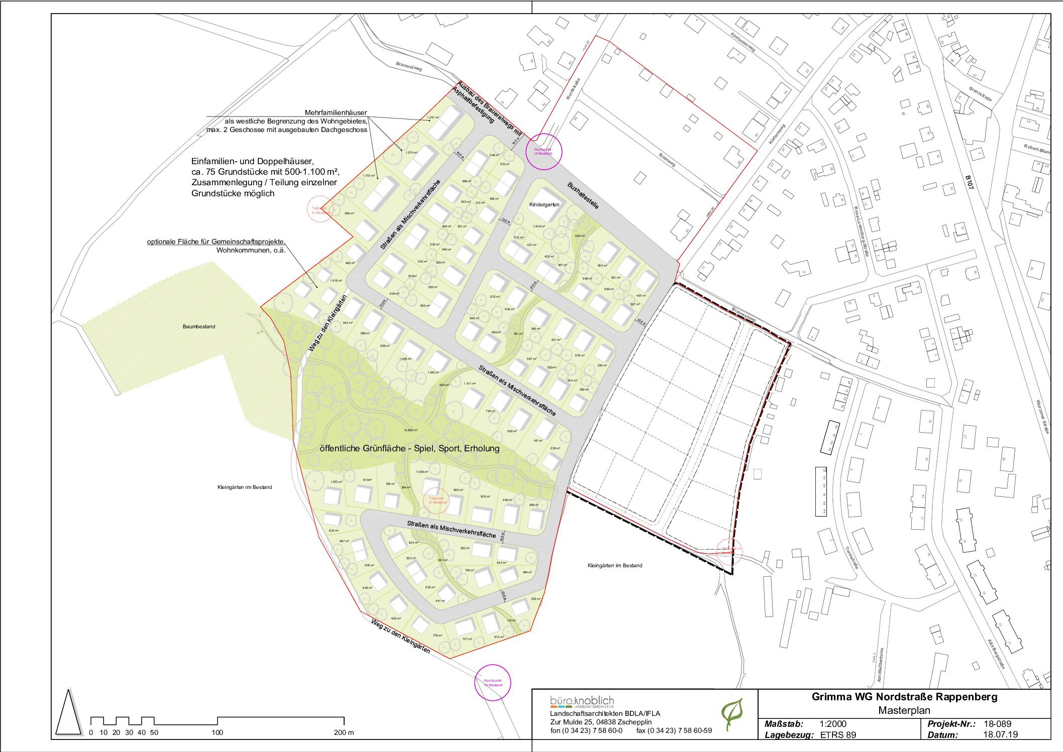
Wohngebiet am Rappenberg

-
Auftraggeber
Grimmaer Wohnungs- u. Baugesellschaft mbHPlanungszeitraum
2019 — 2022Fläche
8 haLeistungen
Bebauungsplan „Wohngebiet Rappenberg, 2. BA“ der Stadt Grimma, Umweltbericht mit Artenschutzfachbeitrag, Antrag auf Waldumwandlung und ökologische Bauberatung
Mit dem Bebauungsplan „Rappenberg – 2. BA“ wird die Grundlage für die Entwicklung eines neuen Wohngebietes geschaffen. Vorgesehen sind Einfamilienhäuser, Mehrfamilienhäuser sowie eine Kindertagesstätte, um ein vielfältiges Wohnangebot und eine gesicherte soziale Infrastruktur bereitzustellen.









